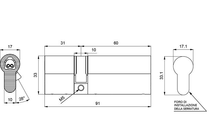
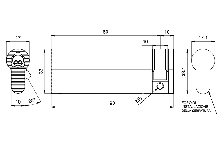
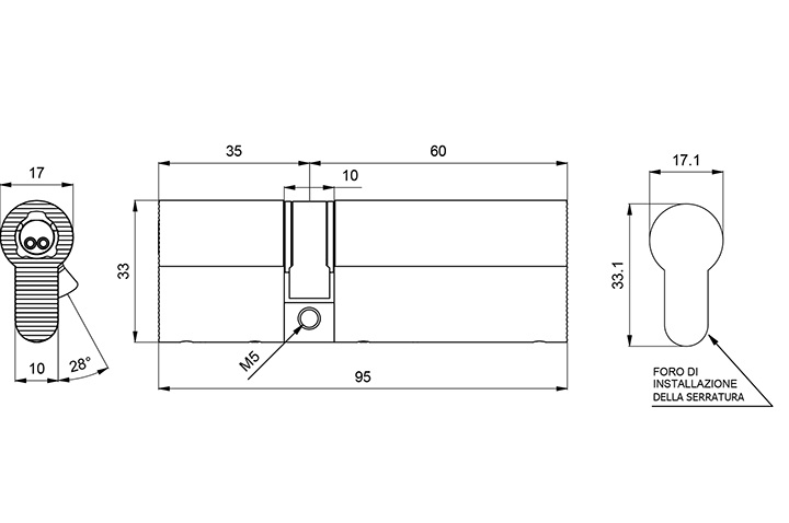
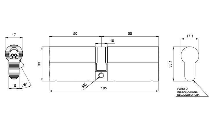
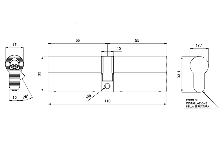
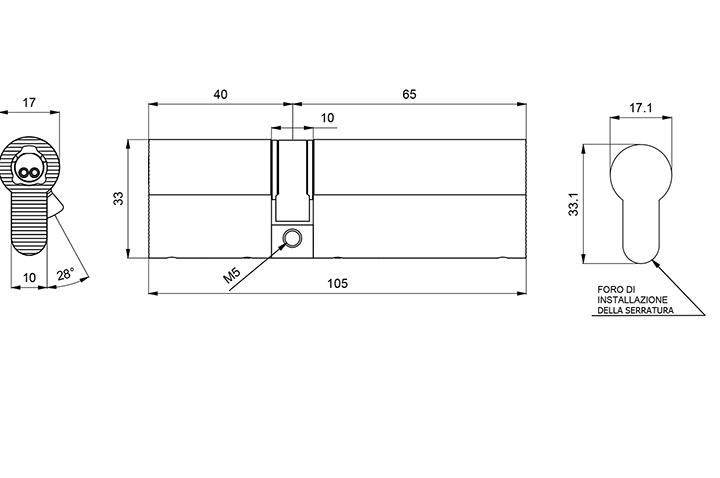
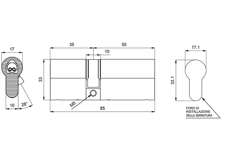
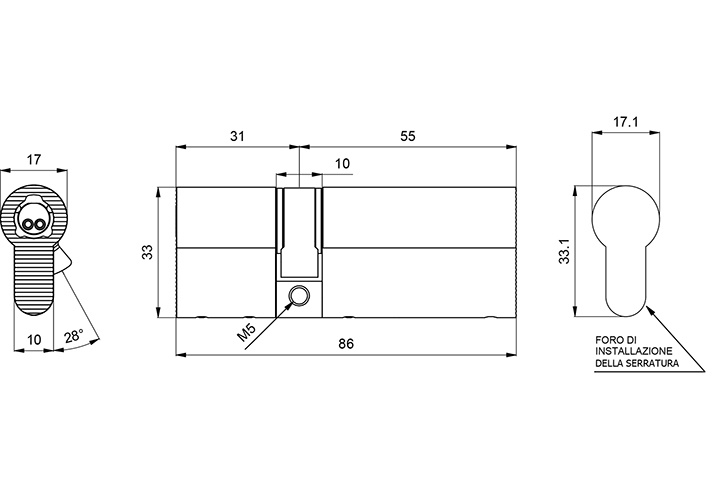
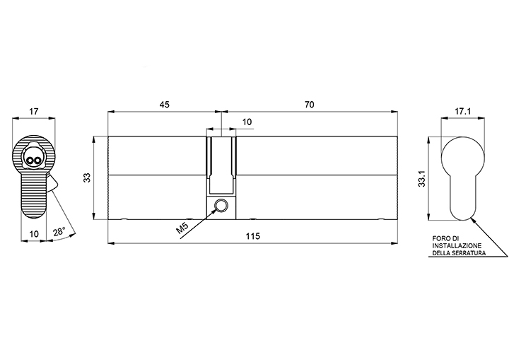
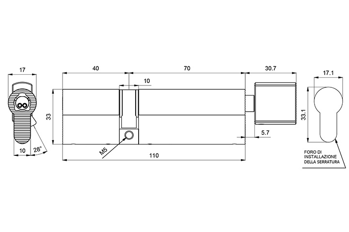
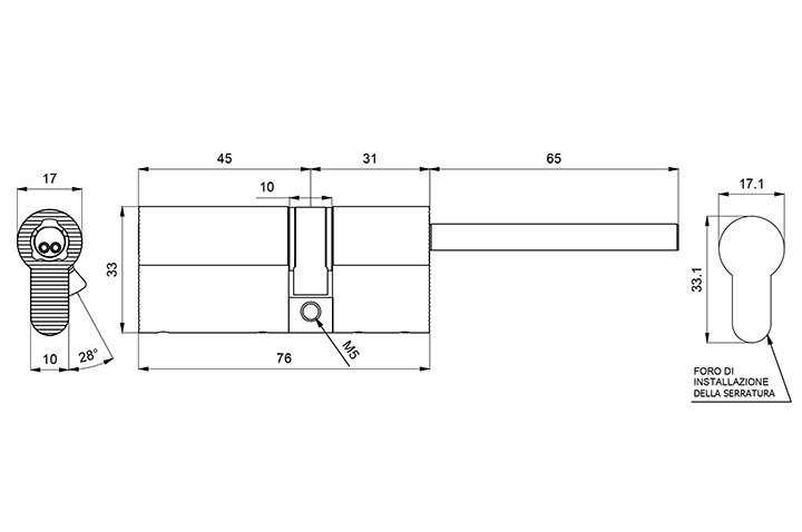
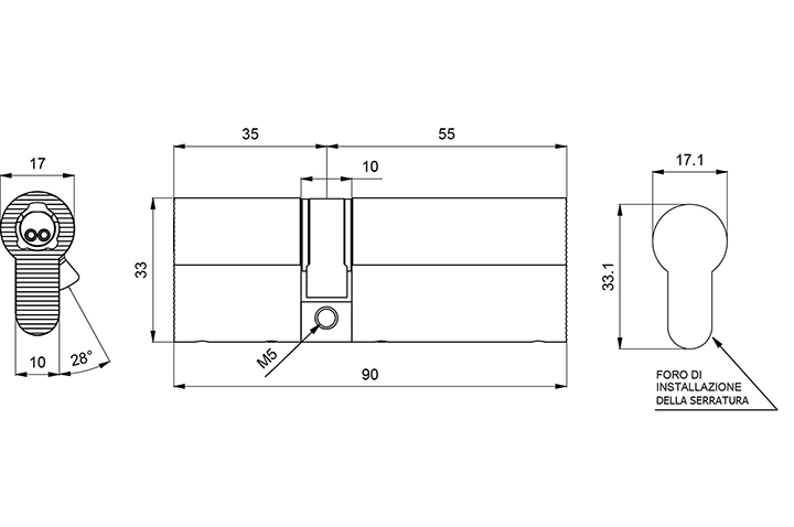
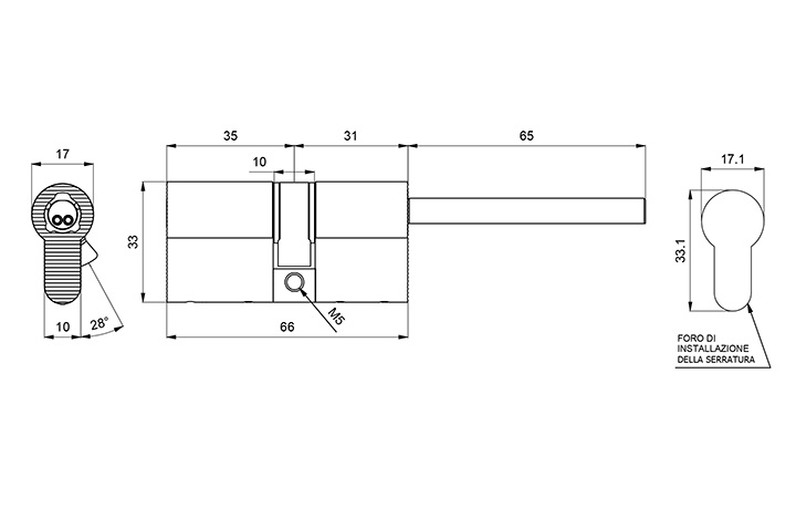
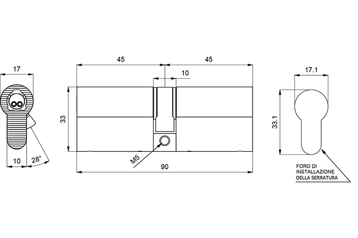
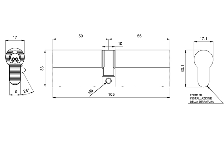
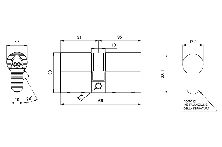
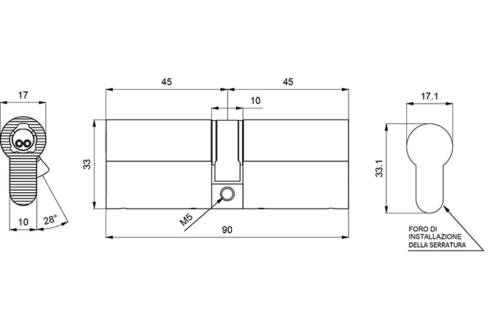
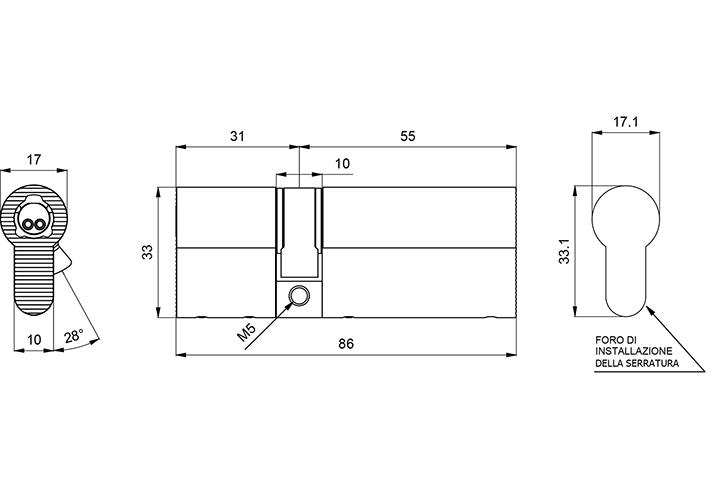
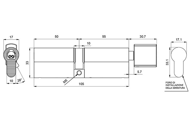
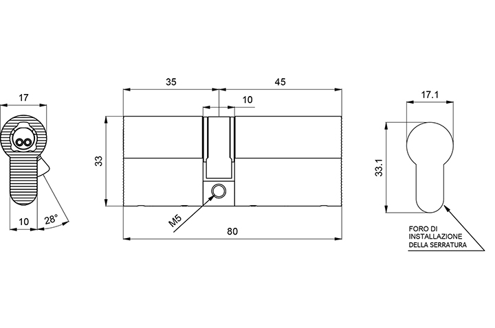
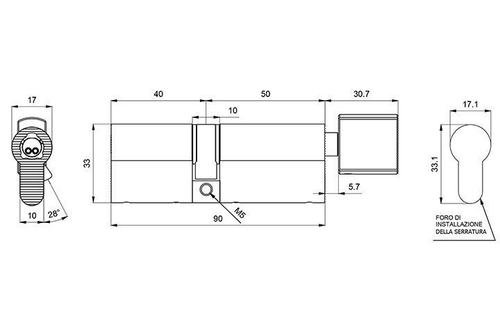
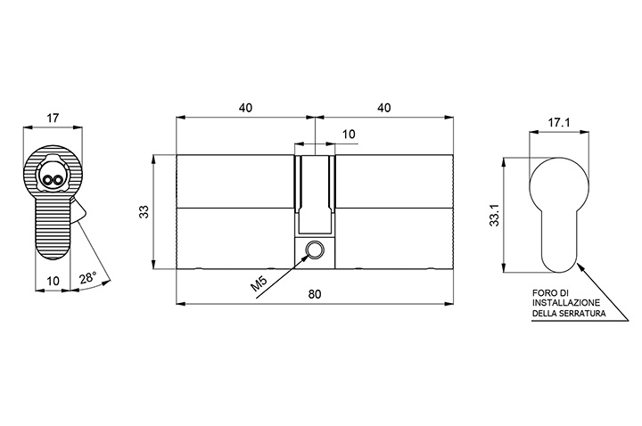
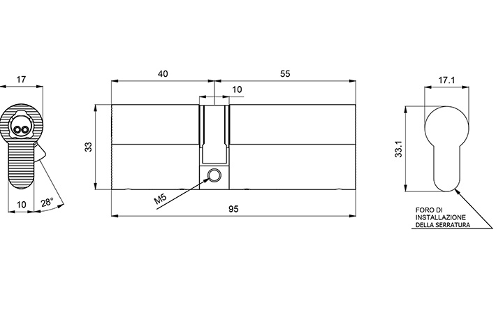
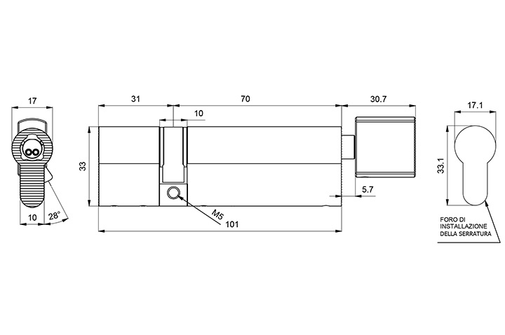
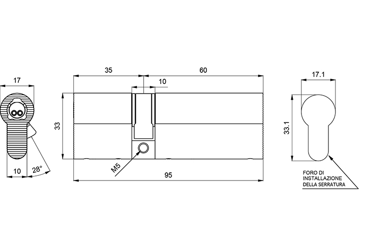
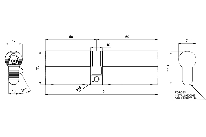
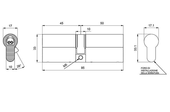
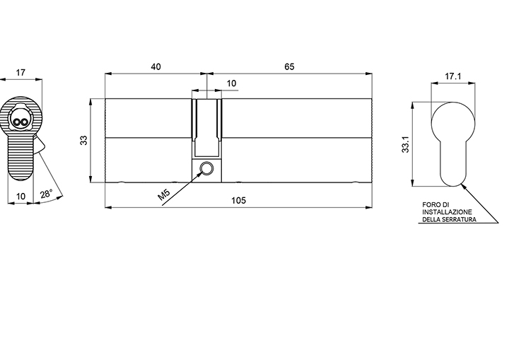
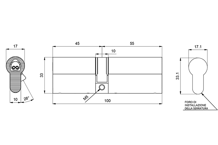
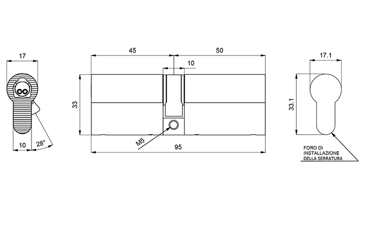
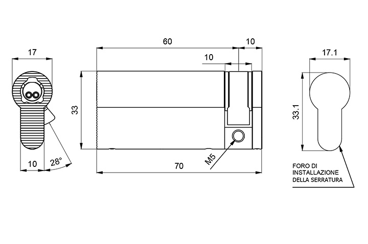
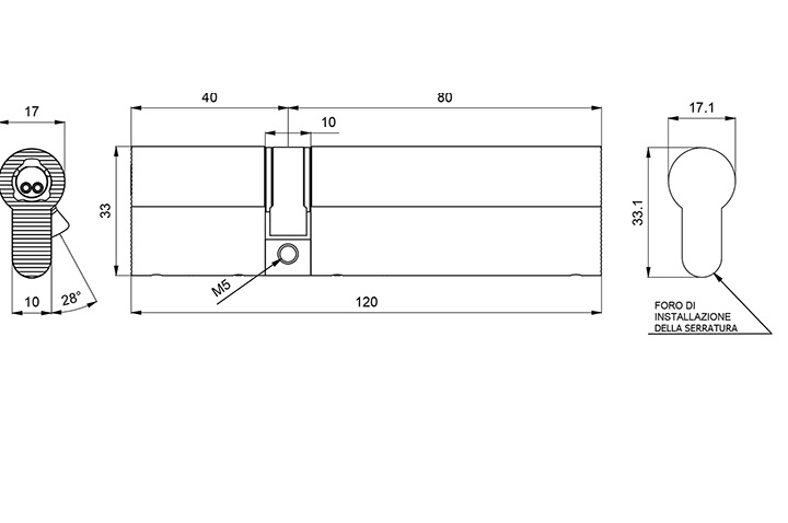
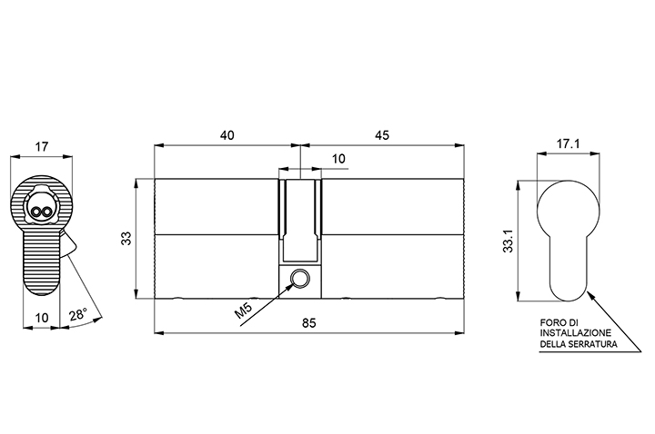
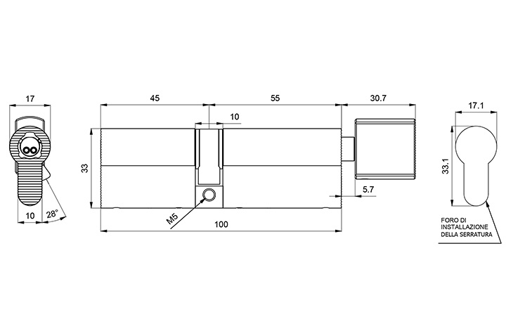
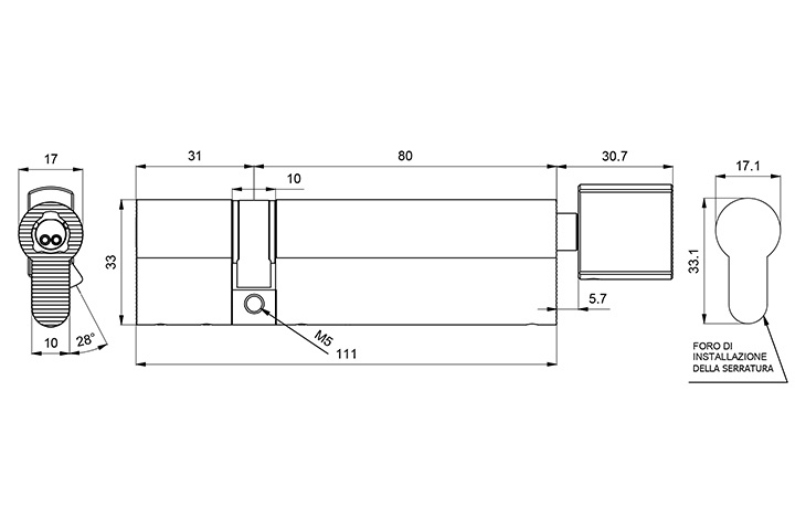
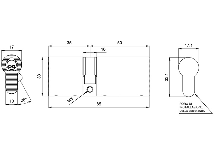
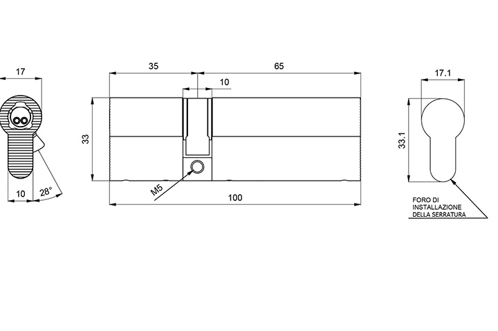
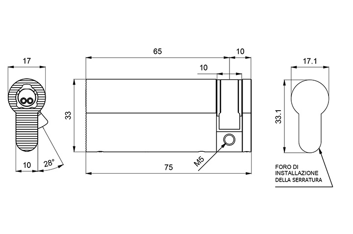
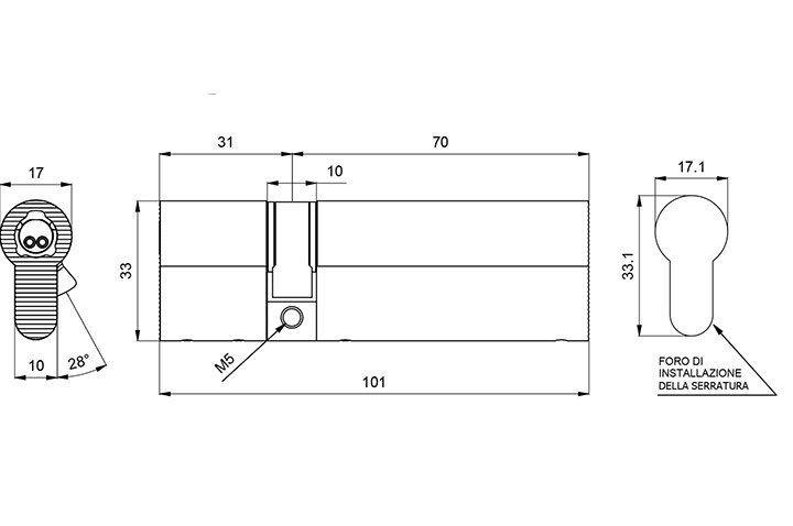
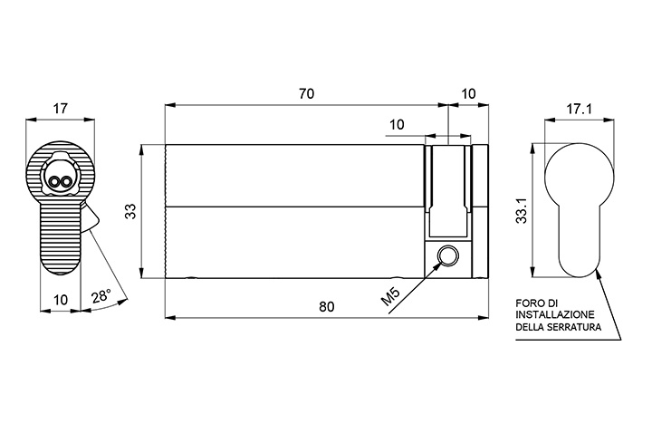
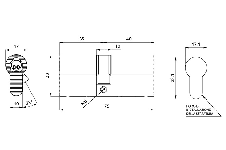
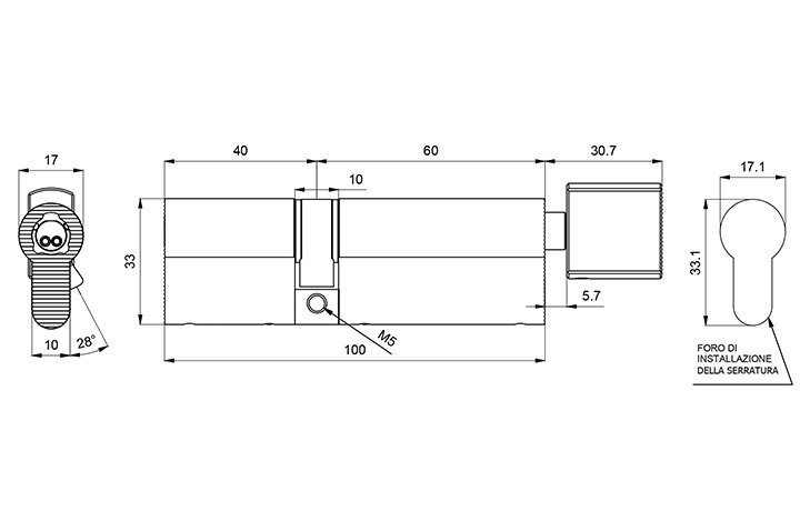
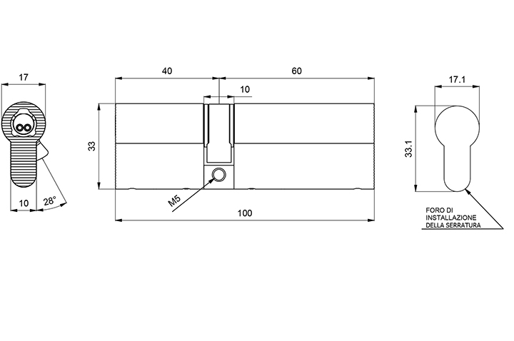
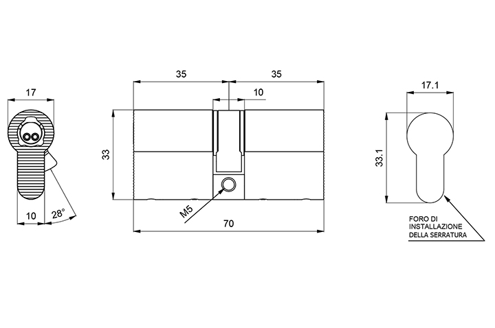
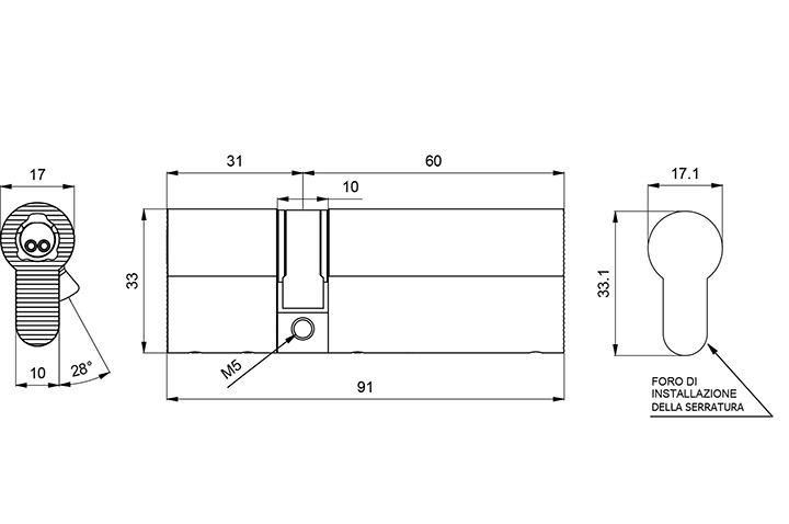
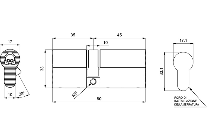
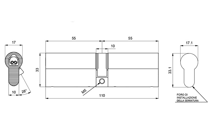
RS7 : Cilindro
La soluzione meccatronica per la sicurezza definitiva
BUSINESS > RS7 > CILINDRO
